売買物件

出水市 新築一戸建て 五万石町453-1マツシタホーム邸

2026.04.25更新

価格:3,250万円
【諸費用】仲介手数料税込569,250円 表示登記費用100,000円 所有権移転登記及び保存登記費用別途となります。

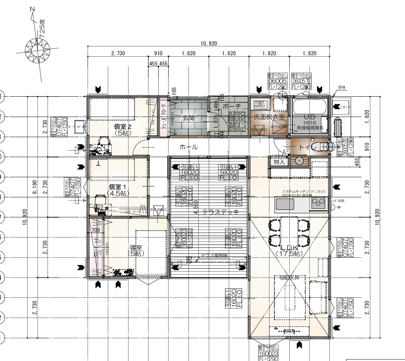
間取 3LDK 専有面積 95.67m²(28.94坪) 土地面積 303.21m²(91.72坪)
構造 木造 階建 1階建 向き
所在地 出水市五万石町453-1、454-1 駐車場 3台可能
物件No:S00124-01-001

【西出水小学校校区】珍しい雰囲気のおしゃれな平家邸宅です!

西出水小学校校区の新築一軒家です!
葦北のマツシタホーム様が建設されたオール電化住宅です♪
建物中央に配置されたテラスデッキは約12帖あり、ご家族だけのプライベート空間となっていますので
ぜひ見ていただきたいです!
省エネ等級5、耐震等級3、劣化対策等級3、UA値0.54・ηAC値1.6/ZEH基準です。
ナノバブル発生装置のビューティアクア設置済みです。
オール電化の設備充実な邸宅です。
内見はご予約制となっております。

間取り
間取り
1/16
外観1
外観1
2/16
外観2
外観2
3/16
外観3・南側
外観3・南側
4/16
テラスデッキ1
テラスデッキ1
5/16
テラスデッキ2
テラスデッキ2
6/16
リビング1
リビング1
7/16
リビング2
リビング2
8/16
リビング3
リビング3
9/16
リビング4
リビング4
10/16
洗面脱衣室・独立洗面化粧台
洗面脱衣室・独立洗面化粧台
11/16
1坪風呂
1坪風呂
12/16
トイレ手洗い
トイレ手洗い
13/16
トイレ・シャワートイレ
トイレ・シャワートイレ
14/16
洋室1
洋室1
15/16
洋室2
洋室2
16/16
間取り
外観1
外観2
外観3・南側
テラスデッキ1
テラスデッキ2
リビング1
リビング2
リビング3
リビング4
洗面脱衣室・独立洗面化粧台
1坪風呂
トイレ手洗い
トイレ・シャワートイレ
洋室1
洋室2

費用情報

価格 3,250万円 諸費用 仲介手数料税込569,250円
表示登記費用100,000円
所有権移転登記及び保存登記費用別途となります。

場所・交通情報

所在地 出水市五万石町453-1、454-1
交通 肥薩おれんじ鉄道西出水駅まで徒歩16分
駐車場 3台可能
周辺環境 西出水小学校まで約480m
ドラッグストアモリ西出水店まで約400m

その他の物件情報

物件名五万石町453-1マツシタホーム邸建築年月2026年
物件種別新築一戸建て構造木造
間取3LDK専有面積95.67m²(28.94坪)
階建1階建取引態様仲介
現況引渡し日即可能
土地権利所有権都市計画非線引き区域
地目宅地用途地域第一種住居地域
最適用途住宅地勢平坦
土地面積303.21m²(91.72坪)坪単価35.43万円
建ぺい率60%容積率200%
セットバックあり
接道情報北側 42条2項道路 幅員3.2m 接道長14.68m
設備上水道、公共下水、洋式水洗トイレ(LIXILアメージュシャワートイレ)、温水洗浄便座、エコキュート(ダイキン370L角型フルオート)、2400サイズシステムキッチン(LIXILシエラS)IHコンロ、1坪風呂(LIXILリデア)浴室乾燥暖房機・きれいサーモフロア・サーモバス・独立洗面化粧台(アイカスマートサニタリーU三面鏡)、食洗器、食器棚、エアコン1台、照明器具、衣類乾燥機、カメラ付きインターホン

不動産情報

ももさわ不動産株式会社

〒899-0207 鹿児島県出水市中央町566
TEL・FAX:0996-63-2337
営業時間:9:00~18:00
定休日:なし(店休日:1月1〜3日)
宅建免許番号:鹿児島県知事(1)第6287号

この物件へのお問い合わせ

「物件についてもっと詳しく知りたい方」や「実際に見学してみたい方」など、
こちらの物件に興味を持たれた方は、下記のフォームよりお問い合わせください。

    物件番号(必須)

    お名前(必須)

    メールアドレス(必須)

    電話番号(必須)

    住所

    メッセージ本文(必須)

    送信内容のご確認(必須)

    上記の内容で送信する(チェックを入れると送信ボタンが押せるようになります)